مقدمة المنتج
GB Crane Rails مرنة للغاية أثناء التثبيت ، ومواصفات مختلفة لسلسلة QU مناسبة لمجموعة متنوعة من هياكل الأساس. Q70 خفيفة الوزن وصغيرة الحجم ، بحيث يمكن تثبيتها مباشرة على الأساس الخرساني مع مسامير التوسع ، وغالبًا ما يتم استخدامها لبناء المسارات بسرعة في المستودعات الداخلية ؛ يجب تثبيت qu120 مع ألواح فولاذية مضمنة وألواح ضغط عالية القوة. عند وضع مسارات رافعة كبيرة في الموانئ ، يتم استخدام القياس الدقيق وتحديد المواقع لضمان التحكم في خطأ مقياس المسار في ± 2 مم ، مما يضمن التشغيل السلس للمعدات الثقيلة للغاية. تلبي حلول التثبيت المختلفة احتياجات البناء من السيناريوهات المختلفة.

عالية الصلابة Qu120 Crane Rail هي سكة حديد فولاذية تستخدم خصيصًا لوضع مسار الرافعة. المواد الشائعة عبارة عن فولاذ عالي الجودة مثل الصلب U71mn من السبائك مع محتوى المنغنيز العالي و U75V. يمكن أن تؤدي إضافة المنغنيز إلى تحسين قوة وصباقة الفولاذ ، مما يجعلها تتمتع بمقاومة جيدة للارتداء وقوة الضغط ، وبالتالي تلبية متطلبات استخدام قضبان الرافعة تحت عمليات الرفع العالية وعمليات الرفع المتكررة.
يتطلب إنتاج Rails Qu120 Crane مستوى عالٍ من التكنولوجيا ومعدات الإنتاج المتقدمة. عادة ، يتم اعتماد عملية المتداول الساخنة. بعد تسخين البليت الصلب إلى درجة الحرارة المناسبة ، يتم تشكيله تدريجياً من خلال عمليات التدحرج المتعددة. أثناء عملية المتداول ، يجب التحكم في المعلمات المتداولة بدقة لضمان دقة الأبعاد والجودة الجوهرية للسكك الحديدية. بالإضافة إلى ذلك ، قد تشارك أيضًا العمليات اللاحقة مثل المعالجة الحرارية لزيادة تحسين صلابة وقوة وارتداء السكك الحديدية.
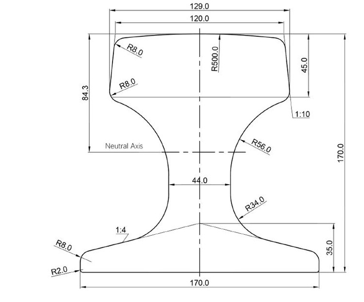
مواصفات المنتج

تعبئة المنتجات والتسليم
قبل التعبئة والتغليف والنقل ، يتم تصوير قضبان الرافعة GB أولاً للسماح للزيت المضاد للانتعاش بالالتزام بالتساوي لتشكيل فيلم وقائي. ثم يتم تعبئتها بأسلوب "شطيرة" ، مع طبقة داخلية مغطاة بورق كرافت مع طلاء مضاد للتجديد ، والطبقة الوسطى ملفوفة بقطن اللؤلؤ لتوفير وسادة ، والطبقة الخارجية المغطاة بالحرارة مع فيلم بلاستيكي PE مع أداء ممتاز للماء. يتم تكديس القضبان بطريقة "أفقي وثلاثة رأسيين" وملفوفة وتجمع مع سلك فولاذي مغلف بلاستيك. يمكن للطلاء البلاستيكي أن يمنع السلك الفولاذي من خدش القضبان ويعزز الأداء المضاد للوقوف. أخيرًا ، يتم تثبيت القماش القبابي المقاوم للأقامان في الجزء العلوي من مجموعة السكك الحديدية المجمعة لمنع تآكل المطر أثناء النقل.


JNEE RAIL هي شركة مهنية تركز على التجارة الدولية لقضبان CRANE القياسية GB ، مع نظام عالمي كامل لسلسلة التوريد. تنفذ منتجاتنا بشكل صارم معايير وطنية ومصنوعة من فولاذ عالي الجودة لضمان أن المنتجات تتمتع بمقاومة تآكل ممتازة وقدرة على الحمل.





الوسم : عالية صلابة qu120 Crane Rail ، China High Hardness Qu120 Crane Rail Manurs ، Worders ، Factory






